Référence annonce: 017e5
Contemporaine d'architectes sur base vigneronne
Entre nature et centre-ville, cette maison presque bicentenaire conjugue charme d’antan et rénovation contemporaine signée par 2 architectes.
Adresse : Centre bourg de Châtel-Guyon
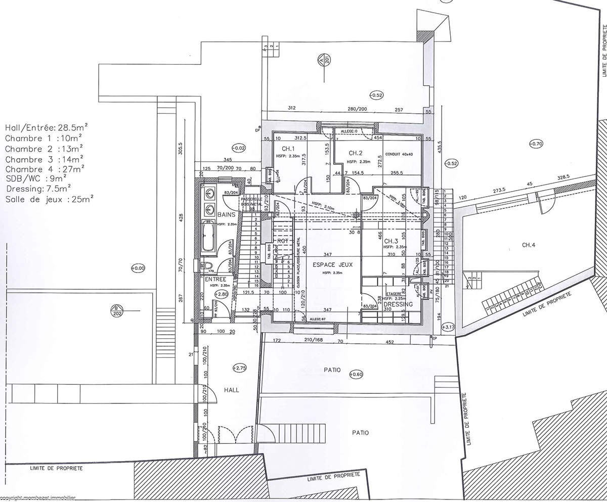
Nombre de pièces : 9
Surface habitable : 300 m²
Surface des dépendances : 105 * m²
Terrain arboré : 2600 m²
- TB vue Limagne et Forez
- Piscine
- Construction : 1837 - 1999
- Architectes : Bruno LAUDAT et Catherine HAAS
- Chauffage central au gaz
- DPE C 🌍 🌱
Prix : 898.000 € (honoraires inclus)
Prix hors honoraires : 850.000 € – Honoraires à la charge de l'acquéreur : 5.65 % TTC

|
|
|
|
* surfaces comptées en dépendances |


.jpg)
.jpg)
.jpg)
.jpg)
.jpg)
.jpg)
.jpg)
.jpg)
.jpg)
.jpg)
.jpg)
.jpg)
.jpg)

